
Accuracy and brevity are no longer an option when it comes to building up documentation. But frequently, there is confusion between two basic elements: product data submittal and shop drawings. Both of them are essential to ensure the successful completion of a project, but they possess different purposes, divergent processes, and are oriented to varying users.
The understanding of the differences between the two can help you prevent unnecessary and costly delays, misunderstandings and stay on schedule with your project. Let us demystify their difference and why the two are important in their own ways.

A product data submittal is a set of documentation provided by the manufacturer that lists the specifications, performance, and conformity of the material or equipment to be used in a project. It's like the "technical resume" for a product.
Contractors usually provide this information to architects or engineers for acceptance prior to installation. These submittals assist in confirming that the products chosen are up to the specifications included in the construction documents.
The material of a product data submittal typically contains:
Such a process assists in the provision of the right products used on site as per the design purpose, code, and project requirements. It, however, does not provide information on how such products would be installed or woven into the buildings, and here shop drawings come into the picture.

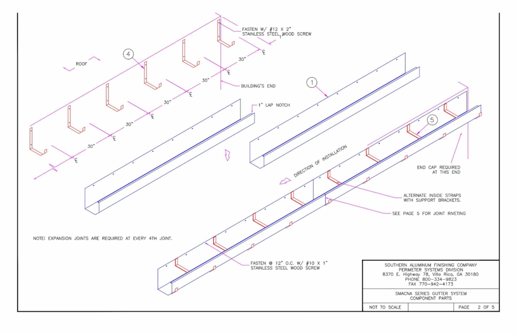
Shop drawing services generate detailed, project-specific plans that illustrate how pieces will be made and installed. These drawings are more specific than the general design intent in construction documents. Rather, they provide an expanded view specific to the precise methods and materials being employed by the contractor or fabricator.
Manufactured by subcontractors, suppliers, or drafting consultants, shop drawings frequently illustrate:
Whereas product data submittals specify "what" a product is, shop drawings indicate "how" it will be employed.
For instance:
It is important to know the difference between the two documents to coordinate the projects easily. Product data submittals ensure you’re using approved materials; shop drawings ensure those materials are correctly integrated into the design.
Confusion between one and the other may be a source of miscommunication, delays in approval, or even a source of error in the process of installation. These errors may not even be detected until late during the construction process, which in worst-case scenarios is much more expensive to fix.
Although they are different, product data submittals and shop drawings tend to cooperate with each other. A contractor may present both documents at the same time so that architects and engineers can examine not only what is being proposed but also how it will be done.
For instance, an HVAC subcontractor could tender technical details for a duct unit (product data) along with a plan layout indicating the location for every duct run (shop drawings). This simultaneous tender provides the design team with the opportunity to assess both feasibility and suitability.
Even veteran pros can get into trouble when there is no clarity between shop drawings and product data submittals.
The most frequent error? Assuming that one can be used in place of the other.
This gap can delay approval processes, cause expensive change orders, or even create safety issues in the future.
Another thing to keep an eye out for is obsolete documentation. If a product is replaced during a project but the submittals and shop drawings are not updated to reflect it, misalignment is unavoidable.
That’s why keeping current and coordinated documents is so important. Avoidance of the pitfalls demands an orderly documentation process and open communication among contractors, consultants, and design teams. When everyone knows what each document should do, collaboration increases, and so does the end result.

To see how technology is influencing construction documentation, let's consider a related issue: 3D rendering vs. traditional drafting. Although this discussion is a bit different from product submittals and shop drawings, it demonstrates how new tools are revolutionizing the way the industry communicates visually.
| Feature | 3D Rendering Service | Traditional Drafting |
| Visual Representation | Photorealistic, immersive images | 2D line work and schematics |
| Detail Level | High; displays textures, lighting, materials | Basic: emphasizes dimensions and structure |
| Client Communication | Best for presentations and approvals | More technical, for contractors |
| Turnaround Time | Could be longer due to complexity | Typically quicker for routine drawings |
| Use Case | Marketing, visualization, and early stages of design | Construction, fabrication, documentation |
| Software Requirements | Needs sophisticated rendering software | Can be accomplished in CAD or even manually |
There is no "one size fits all."
Certain jobs involve revising every type of document multiple times. With field conditions altering or products becoming obsolete, revisions to submittals and shop drawings may be necessary in order to keep up with the new direction.
At Drafting Consultants, we understand that precise, coordinated documentation is the foundation of every successful construction. Whether you require precision-driven shop drawing services or need professional support to help you navigate technical submittals, we are here.
Our staff brings experience, attention to detail, and up-to-date tools together to assist your project from beginning to end. Let’s cut through confusion and have your build done correctly the first time.
What is the product data submittal approval process?
Contractors typically submit product data to engineers or architects, who check and approve or deny it according to project specifications.
Who makes shop drawings?
Subcontractors, manufacturers, or third-party construction detailing drafting consultants typically make shop drawings.
Are shop drawings required on every project?
No, but for custom or complicated components, they're required to guarantee correct fabrication and installation.
Do you offer drafting and consulting services?
Yes, we provide drafting and consulting services, including a full scope of drafting and consulting services, to assist design professionals, contractors, and fabricators.