
If you’ve ever worked on a construction project, you already know one thing for sure: nothing moves fast. And one of the biggest reasons? Submittals.
Everyone talks about schedules, budgets, drawings, and deadlines, but construction project submittals quietly sit in the background, controlling whether a project flows… or stalls hard.
They don’t sound exciting. They aren’t flashy.
But skip them, rush them, or mess them up, and the whole job feels it.
Let’s break this down in plain language. No textbook tone. Just a real-world explanation of how projects actually run.

Construction project submittals are documents contractors send to architects, engineers, or project managers for review and approval before work moves forward.
Simple idea.
Critical step.
These documents confirm that what’s being installed on-site actually matches what was designed, specified, and approved on paper.
Submittals usually include things like:
Think of submittals as the “prove it before you build it” step.
Before steel is fabricated.
Before materials are ordered.
Before anything permanent happens.
Here’s the blunt truth: most construction mistakes don’t happen in the field.
They happen earlier on paper.
Submittals catch those problems early. Or at least they’re supposed to.
When submittals are done right:
When they’re done poorly:
This is why experienced contractors take construction project submittals seriously, even when timelines are tight.
Not all submittals are the same. Different trades, different needs.
These include manufacturer specs, performance details, dimensions, and compliance info.
They answer one basic question: Is this product acceptable for the job?
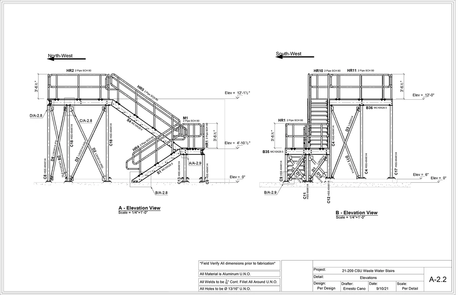
These are detailed drawings showing how something will actually be fabricated or installed.
Steel detailing, truss layouts, and custom components. This is where accuracy matters.
Often tied closely with shop drawings, CAD files give precise, scalable details that teams rely on for coordination.
This is where CAD drafting outsourcing becomes a big advantage for many contractors and design teams.
Physical samples or visual mock-ups help stakeholders see exactly what they’re approving. No surprises later.
Let’s be honest.
Submittals have a reputation for being time-killers.
And sometimes, they deserve it.
Delays usually happen because:
Most of these issues come down to one thing: a lack of drafting and documentation support.
This is exactly why many firms turn to CAD drafting outsourcing instead of trying to handle everything in-house.
Outsourcing CAD drafting doesn’t mean losing control.
It means getting experienced eyes on technical details without overloading your internal team.
With professional CAD drafting outsourcing:
Fewer resubmittals alone can save weeks on a project.
Drafting Consultants specializes in supporting construction teams with accurate CAD drawings, shop drawings, and product data submittals, so projects don’t stall over avoidable mistakes.
This part doesn’t get talked about enough.
Bad submittals don’t just slow projects. They cost real money.
Some common fallout:
And none of that is cheap.
Strong construction project submittals act like insurance. They don’t guarantee perfection, but they massively reduce risk.
Not every company needs a full in-house drafting department.
And even those who do often get overwhelmed.
CAD drafting outsourcing gives flexibility:
For contractors, architects, and builders working across the USA and Canada, online drafting services just make sense now.
Drafting Consultants works exactly this way, supporting teams remotely while maintaining industry-level accuracy and standards.

Drafting Consultants doesn’t just create drawings. Our team supports the entire workflow behind construction documentation.
Here’s how that helps submittals move smoothly:
👉 Mid-Blog CTA.
Getting drafting and submittals right the first time saves more than just time.
Talk to Drafting Consultants
At the end of the day, construction project submittals are about communication.
They align:
When submittals are clear, everyone’s on the same page.
When they’re sloppy, confusion spreads fast.
Good submittals say, “Here’s exactly what we plan to build.”
Bad ones say, “Figure it out later.”
And later is always more expensive.
Construction project submittals might not be the most exciting part of a build, but they’re one of the most important.
They protect schedules.
They protect budgets.
They protect reputations.
Pairing solid submittal practices with reliable CAD drafting outsourcing gives teams a real edge, especially when projects are complex or timelines are tight.
If you’re tired of rejections, revisions, and delays, it’s probably time to rethink how your submittals are handled.
👉 Partner with Drafting Consultants for professional CAD drafting outsourcing, shop drawings, and product data submittals that meet industry standards, on time, and without the stress.
Request a quote today: https://www.draftingconsultants.com/
📞 Call: (800) 494-6186
Construction project submittals are the documents presented to the contractor by the suppliers of materials, products, and drawings to ensure that they are in accordance with the project specifications before actual installation or fabrication commences.
They assist in early detection of mistakes, elimination of duplication, maintaining adherence, and maintaining schedules and budgets of the project.
Shop drawings, CAD drawings, product data sheets, samples, and technical specifications are also usually included in the submittals.
The benefits of CAD drafting outsourcing are that it enhances accuracy, accelerates revisions, cuts internal workload, and improves the first-round approval.
To be good and compliant, submittals are typically done by contractors, with the help of professional drafting firms such as Drafting Consultants.